PRIME OFFICE OPPORTUNITY IN SCORESBY – READY FOR GROWTH
Aston are pleased to present 1/2 Keith Campbell Court, Scoresby for Lease.
Ready for a productive workspace? This versatile office offers the ideal set up for professional services, tech, or creative teams – designed to support productivity and collaboration.
The features:
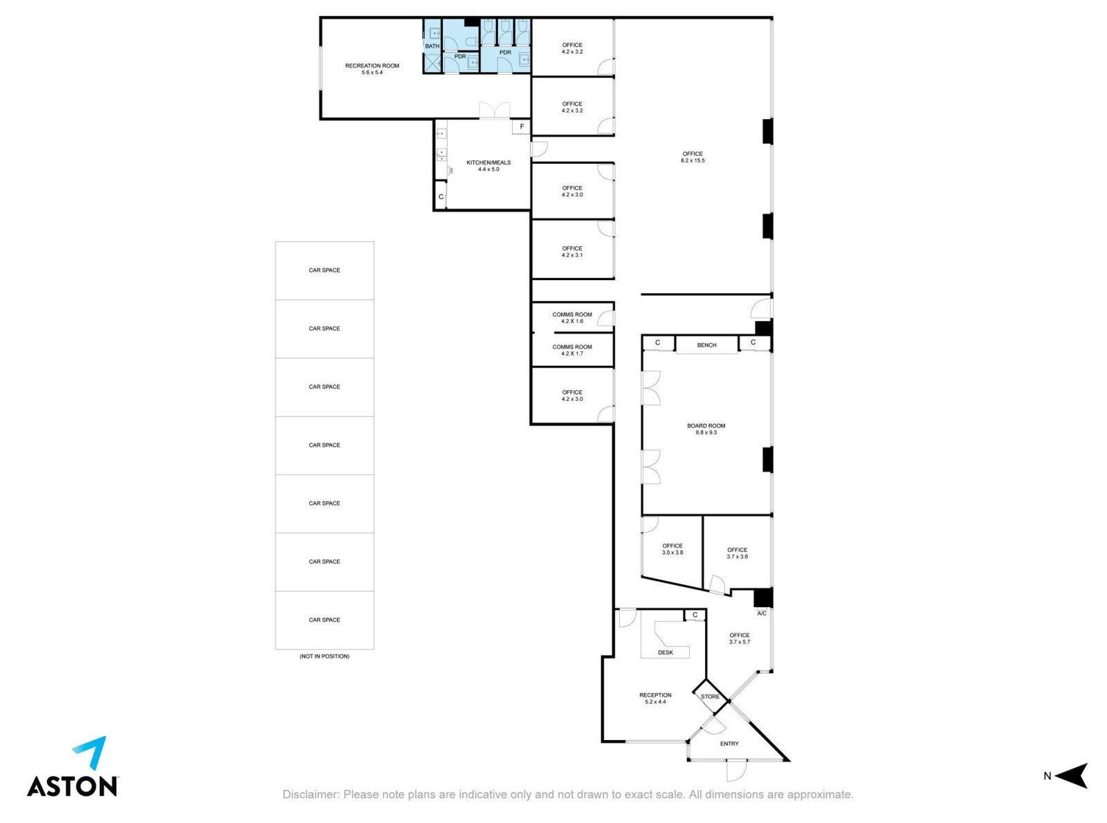
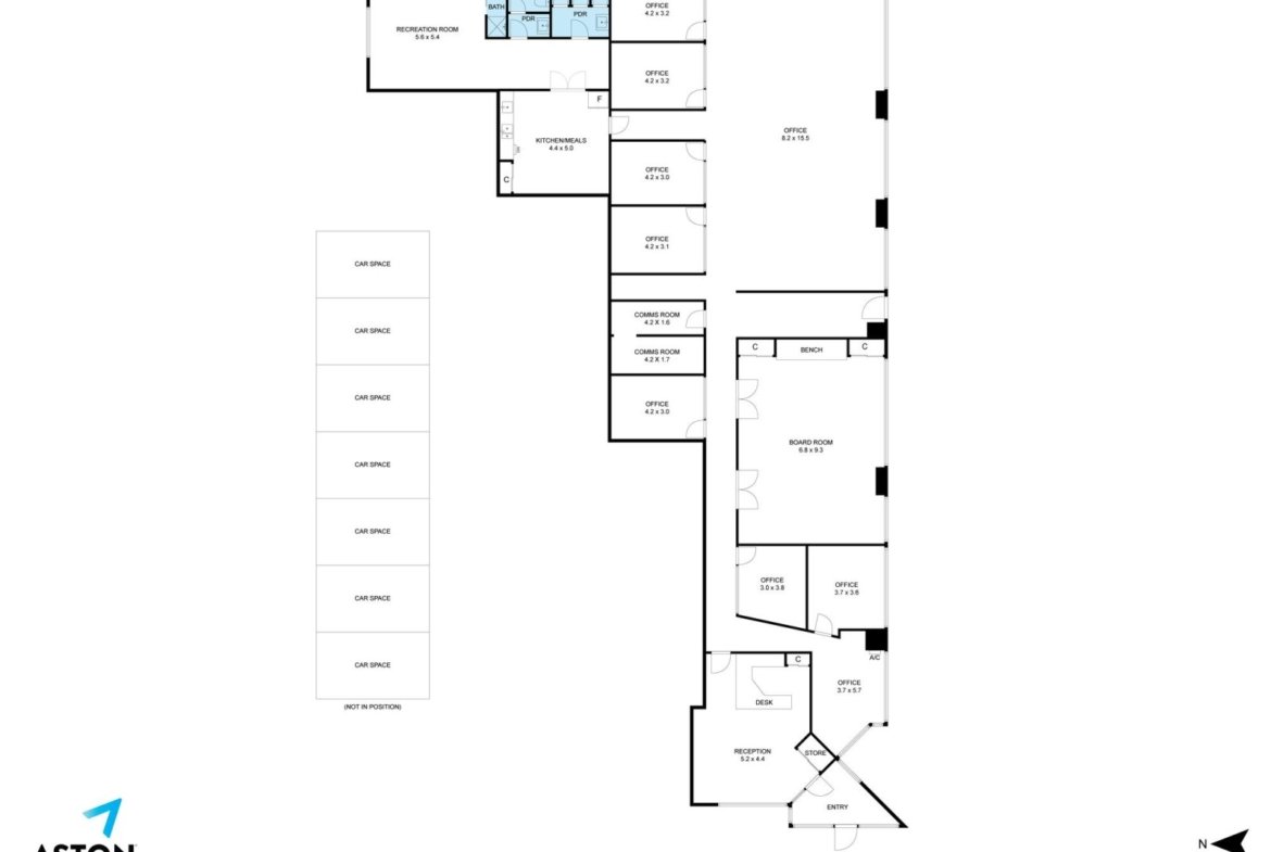
• Floor area of 650m²*
• Reception area
• Multiple private offices
• Large boardroom
• Expansive open plan area
• Recently upgraded ducted heating and cooling
• Male and female toilets plus shower
• Large kitchenette and breakout room
• Seven (7) car spaces plus unrestricted street parking
• Fully furnished (optional)