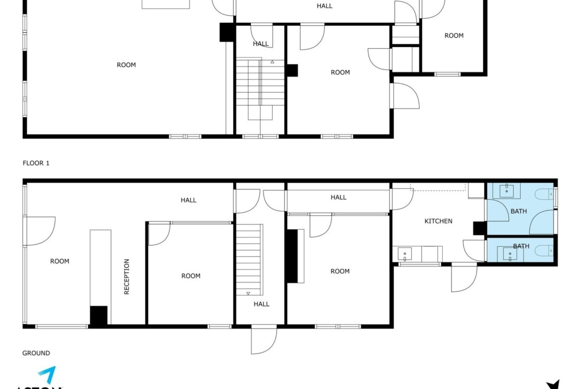
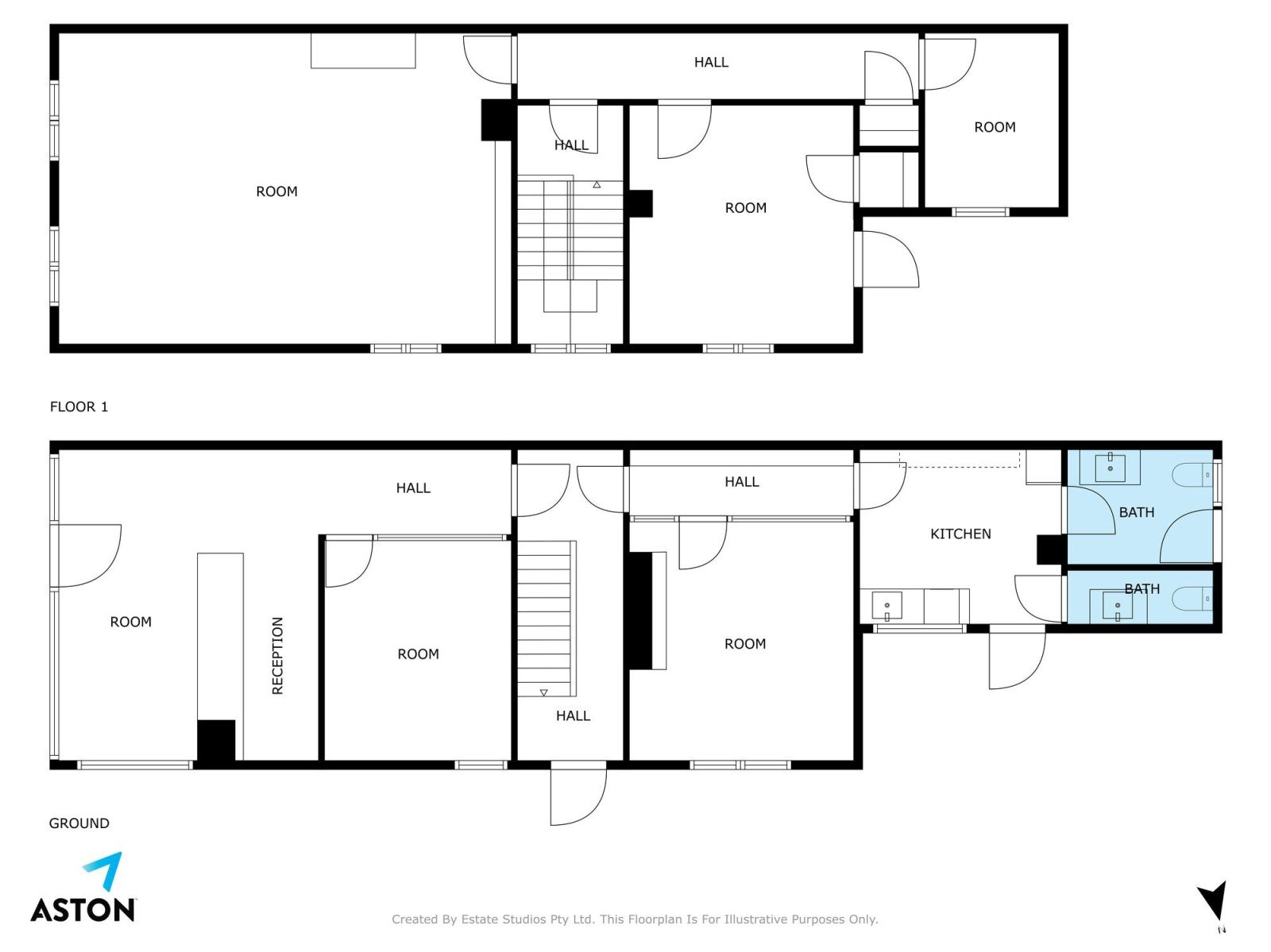
19 Station Street, Oakleigh VIC 3166