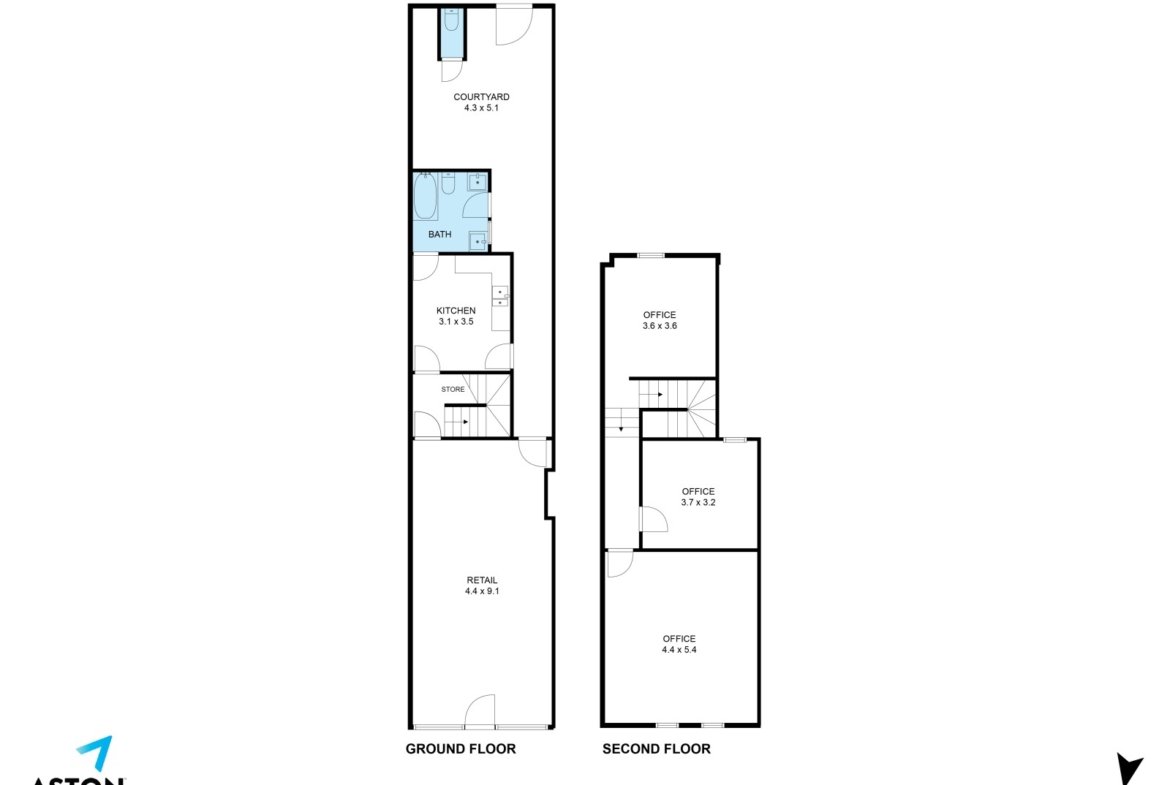
338 Malvern Road, Prahran VIC 3181