NOW THAT’S A WAREHOUSE – SCALE, ACCESS AND FUNCTIONALITY
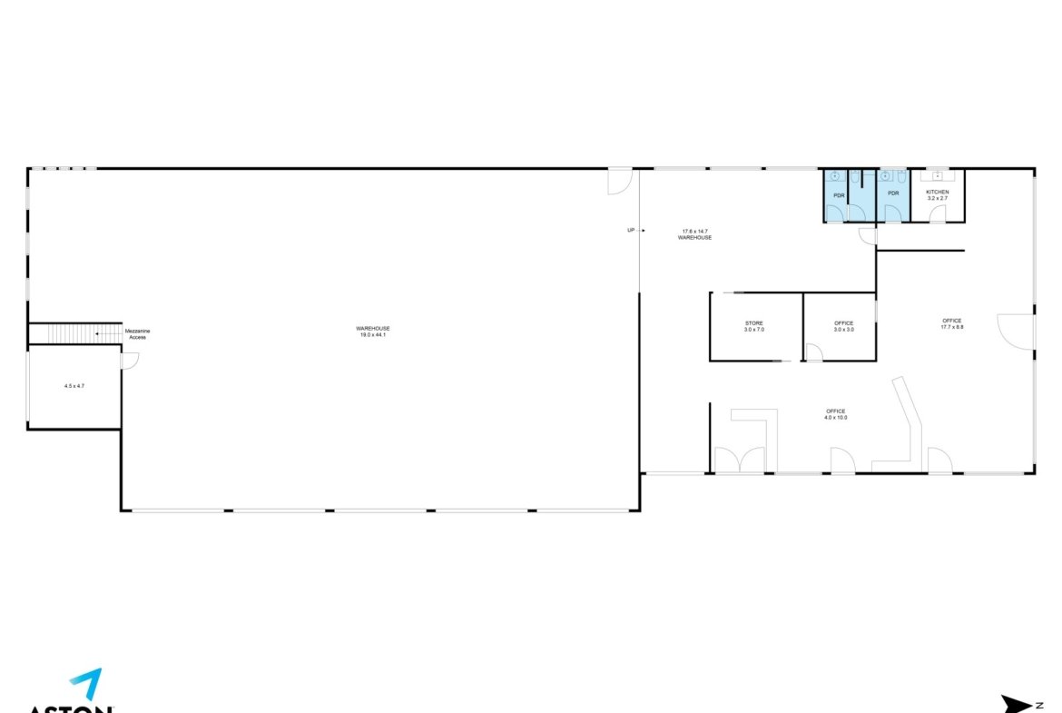
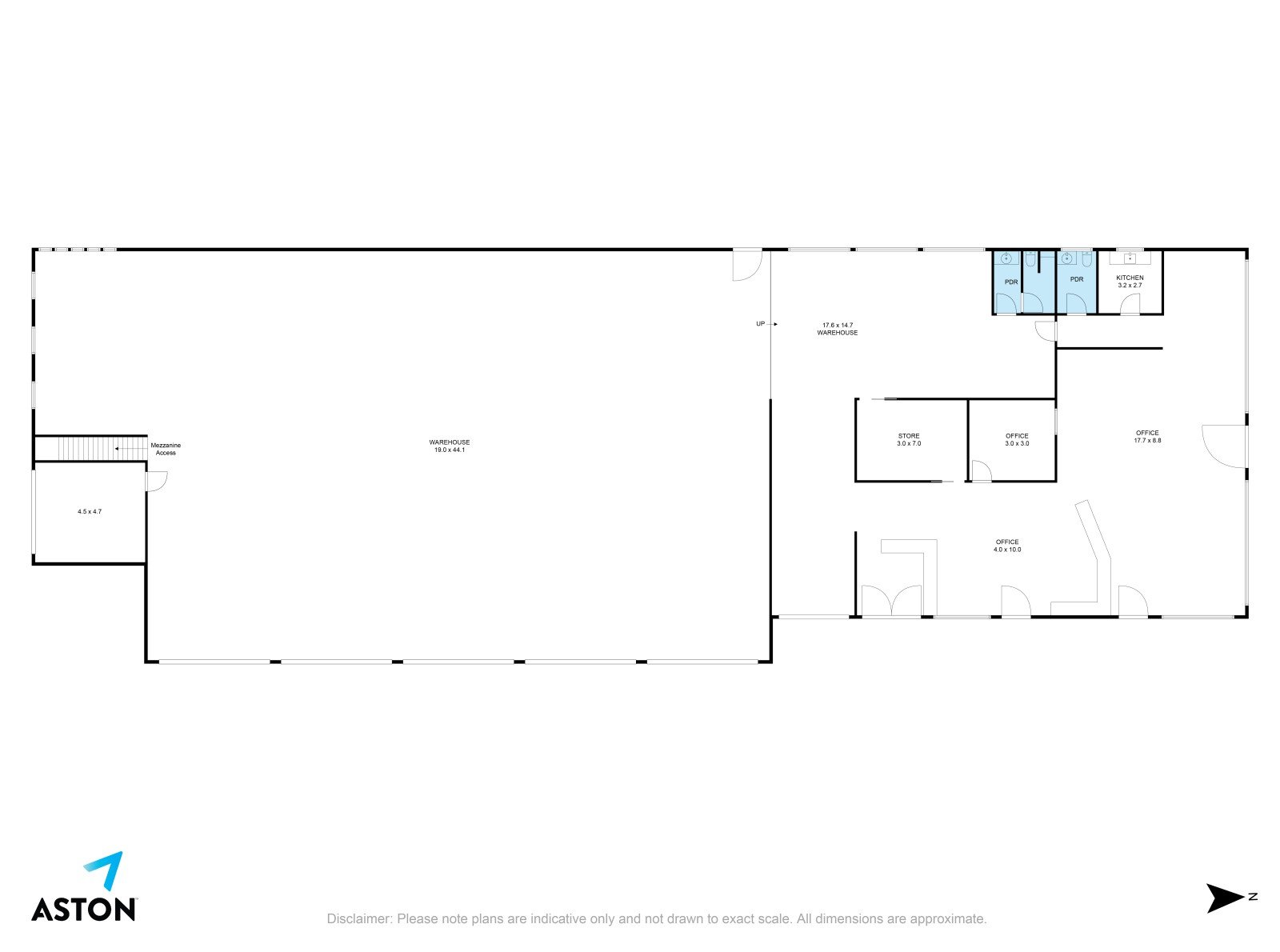
- Large format warehouse of 1,234m²*
- Multiple secure access points
- Prime location & excellent connectivity
Aston are pleased to present 421 Somerville Road, Tottenham for Lease.
An excellent opportunity for tenants seeking an affordable and substantial, high-clearance facility with multiple loading points, generous onsite parking and secure access – ideal for logistics, manufacturing, storage or trade operators (STCA).
The features:
Read More
• Secure gated entrance
• Expansive high-clearance main warehouse
• Five (5) full height roller doors
• Excellent access for loading and manoeuvring
• Secondary large warehouse area with additional storage rooms
• Potential office/large showroom/reception area at entrance
• 3-phase power
• Kitchen area
• Two (2) separate toilets
• Seven (7) plus car spaces at the front on-site
Positioned on Somerville Road with direct connectivity to major arterial routes, the property offers streamlined access to the West Gate Freeway, Princes Highway, the Port of Melbourne and broader western industrial network.
A practical, accessible location for operators needing efficient movement and transport links.
For further information or to arrange an inspection, please contact the exclusive agents.
*approximate