Aston are delighted to present this exceptional corner retail opportunity at 6/302 Beach Road, Black Rock for Lease.
Perfectly positioned in the heart of Beach Road in Black Rock, this highly visible site offers the ideal space to bring your business to life.
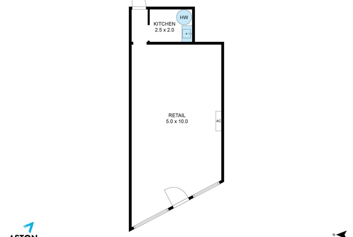
The features:
• Open-plan retail space of 65m²* – ready for your custom fit-out
• Prominent corner location with excellent exposure
• Rear access via car park
• Kitchenette plus heating and cooling – all season comfort
•Two (2) reserved on-site car spaces
• Additional council parking at rear of property
Situated in the bustling heart of Black Rock, this unbeatable location places you steps from local shops, cafes and the stunning coastline.
Don’t miss out, contact Aston today to arrange your private inspection.
*approximate