HIGH EXPOSURE DONCASTER OPPORTUNITY
- Un-lock potential of rare 220m²* space
- Prominent and accessible location
- Excellent connectivity
Aston are pleased to offer 6A High Street, Doncaster for Lease.
Large space, without large overheads.
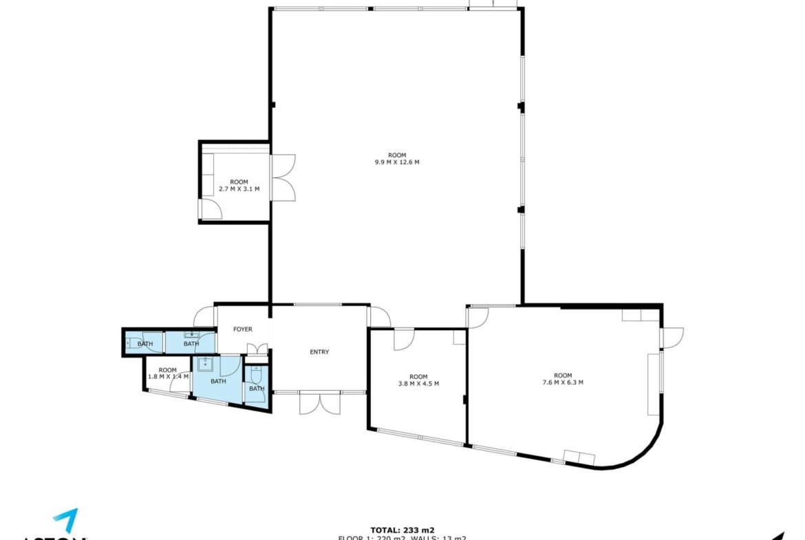
Unlock the potential of this rare 220m²* ground-floor space, positioned in one of Doncaster’s most prominent and accessible locations. Situated just moments from Westfield Doncaster, this property offers outstanding exposure, surrounded by thriving local businesses and premium residential catchments.
Read More
Whether you’re looking to establish an allied health clinic, office or boutique fitness studio (STCA), this highly adaptable tenancy presents a blank canvas ready for your vision.
The features:
• Flexible floor space of 220m²*
• Prominent street frontage with high visibility
• Secure access
• Ten (10) car spaces*
• Excellent connectivity via Eastern Freeway and public transport
The property’s prominent location and accessibility make it well suited to a professional or service based operator seeking a strategic foothold in Melbourne’s sought-after eastern suburbs.
Don’t miss your chance to join this high-growth precinct with strong demographics and ongoing development activity.
For further information or to arrange an inspection, contact one of the exclusive marketing agents.
*approximate