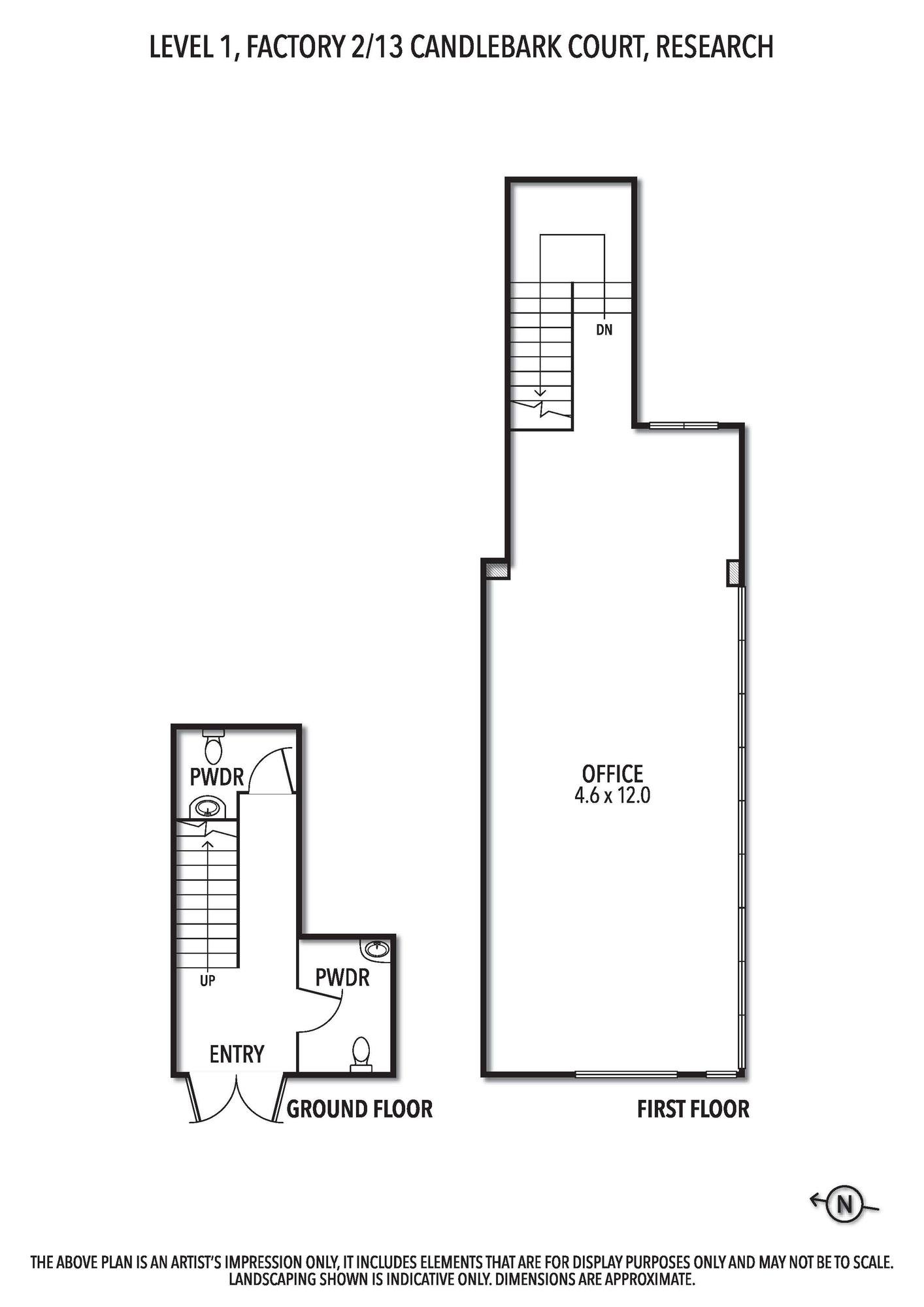
LOCAL & CONVENIENT BUDGET FRIENDLY OFFICE
Aston are pleased to present this clean and functional first floor office in a tightly held Research location for Lease.
The features:
• Floor area of 55m²*
• Open plan layout with great natural light
• Heating and cooling
• Private amenities including kitchenette and bathroom